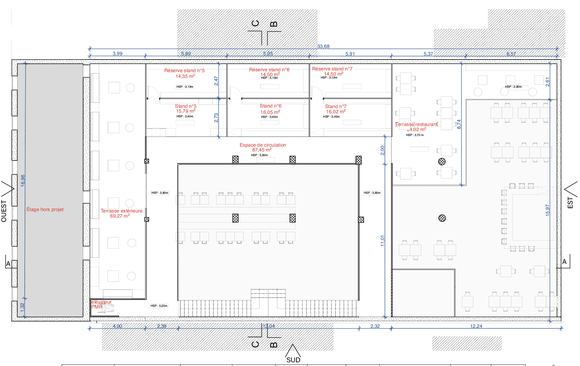
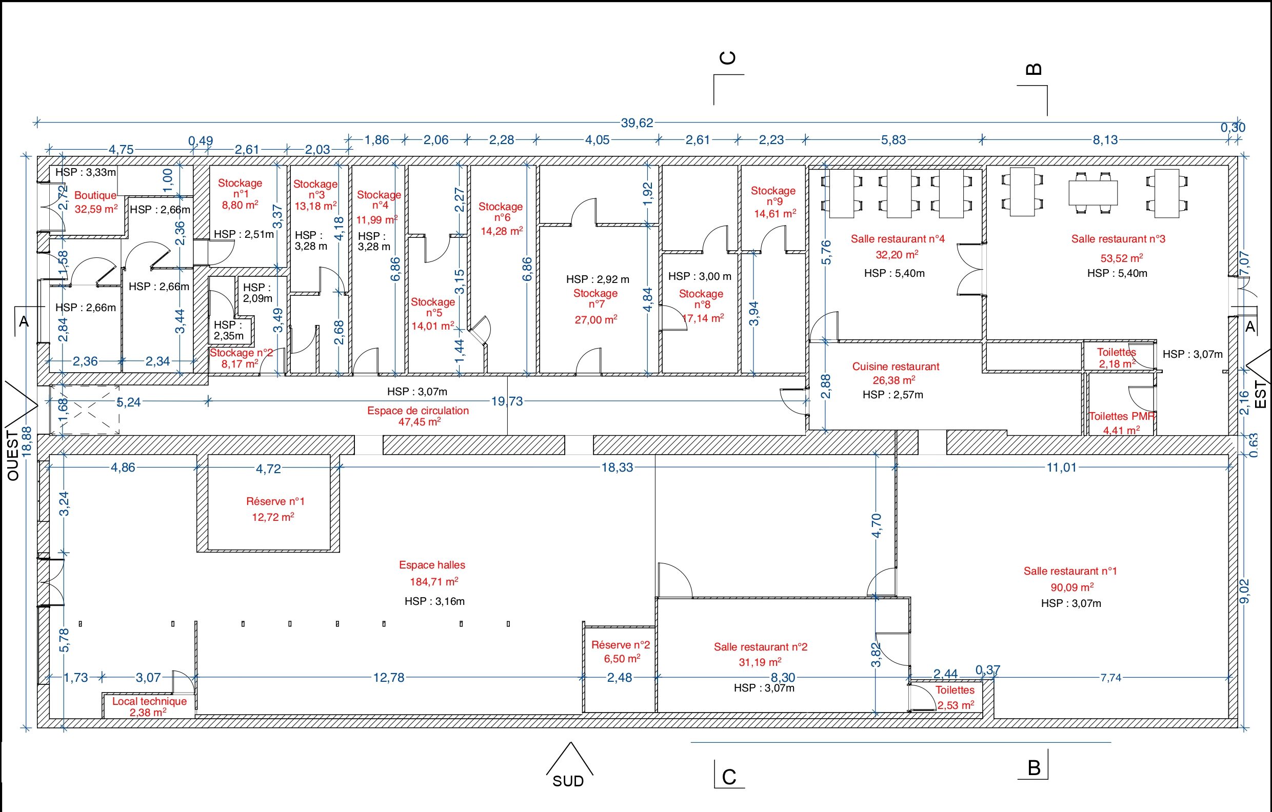
Le projet consiste à rénover un marché de 764 m² au Bouscat en augmentant le nombre de stands et en optimisant l’éclairage naturel. L’agrandissement du restaurant et la réorganisation des espaces de stockage est à prévoir. Un local poubelle et une meilleure gestion des livraisons devront compléter cette transformation.


Apporter une plus value au marché du Bouscat en redynamisant l'espace de circulation, tout en rendant les stands marchands plus fonctionnels.
Le client souhaite diversifier l’offre commerciale, agrandir le restaurant et réorganiser les espaces de stockage. Il demande aussi un local poubelle et une meilleure gestion des livraisons.
Je propose un agencement optimisé, respectant budget et logistique. L’espace sera réorganisé pour plus de praticité, avec un design fonctionnel, esthétique et lumineux.


